전남 아파트 더샵 광양레이크센텀

















더샵 광양레이크센텀 아파트 모델하우스 분양
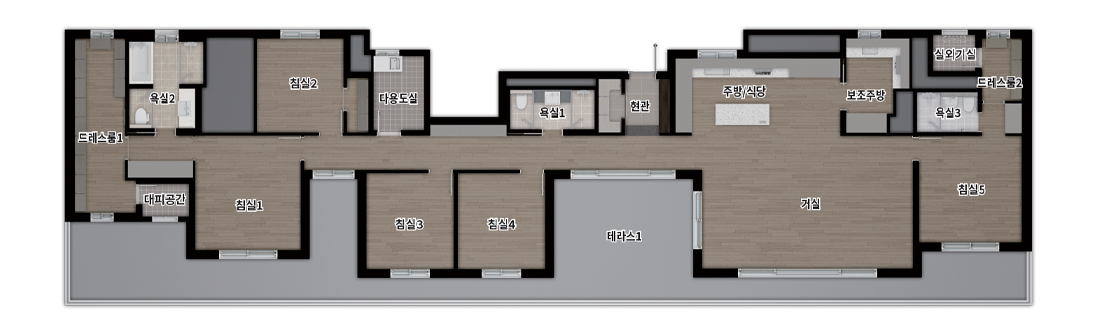
광양시는 올해 대규모 예산을 바탕으로 도로·관광·도시재생을 동시에 추진하며 정주 여건을 빠르게 끌어올리고 있습니다. 이 변화의 한가운데에서 합리적인 분양가와 실거주 만족도를 앞세운 더샵 광양레이크센텀이 눈에 띄었습니다. 호수와 산을 동시에 품은 배산임수 입지, 브랜드 대단지의 규모감이 조화된 점이 특히 인상적이었습니다. 더샵 광양레이크센텀은 마동 348-4번지 일원에 들어서는 9개 동, 지하 3층~지상 29층 규모의 925세대 아파트입니다. 건폐율 14.71%, 용적률 247.62%로 설계해 부지 대비 건물 비율을 낮추고 개방감을 확보했습니다. 세대당 1.5대 주차, 단지 내 상가까지 더해 생활 동선의 편의도 챙겼습니다.
평면 포트폴리오와 구조의 장점
실수요가 가장 선호하는 중형(전용 84㎡)을 주력으로 115㎡, 펜트하우스(134㎡ 이상)까지 준비해 선택 폭을 넓혔습니다. 더샵 광양레이크센텀의 84㎡ A~C는 4Bay 판상형에 맞통풍이 가능한 구조라 채광·환기 효율이 뛰어나고, 알파룸을 서재·취미실로 활용하기 좋습니다. ㄷ자 주방과 창 있는 드레스룸을 채용해 수납과 습기 관리가 수월합니다. 84㎡ D는 2Bay 타워형으로 LDK 일체형 거실이 주는 개방감이 돋보이며, ㄱ자 주방과 다용도실의 짧은 동선 덕분에 가사 효율이 높습니다. 더샵 광양레이크센텀은 타입별로 현관 수납, 팬트리, 알파룸을 세심하게 배치해 ‘수납이 넉넉한 집’을 찾는 수요에게 분명한 대안을 제시합니다.
스마트·청정·안심 시스템의 일상화
실내 청정환기 시스템과 옥외 미세먼지 저감·공기질 관리 체계를 연동해 사계절 공기 관리가 가능하도록 했습니다. 더샵 광양레이크센텀은 엘리베이터 자동 호출, 13인치 스마트 월패드, 지능형 영상분석, 안면인식 도어폰 등을 적용해 출입·방범의 번거로움을 줄였고, 어르신·아이까지 고려한 생활 안전성을 높였습니다. ‘매일 쓰는 기술’이 진짜 체감 가치를 만든다는 점이 장점입니다.
조경·커뮤니티: 호수와 정원을 닮은 일상
뒤로 가야산, 앞으로 마동호수·생태공원이 펼쳐지는 입지에 걸맞게, 지상은 공원형으로 구성했습니다. 주동은 남향 위주, 최장 148m 동간 이격으로 통경축과 채광을 확보했습니다. 더샵 광양레이크센텀에는 물놀이장, 산수정원, 좌우 소공원, 선큰 가든이 이어져 단지 안에서도 산책·휴식 동선이 완성됩니다. 스포츠존(피트니스·필라테스·사우나·탁구장)과 스크린 골프연습장, 북카페·스터디룸·프라이빗 독서공간을 갖춘 에듀존, 가족이나 지인을 초대하기 좋은 게스트하우스까지, 주말에 굳이 멀리 나가지 않아도 되는 생활 편의를 누릴 수 있습니다. 이처럼 더샵 광양레이크센텀은 ‘집 안팎이 모두 여가 공간’인 구성을 지향합니다.
생활·교육·교통의 균형감
중마동 핵심 생활권과 맞닿아 대형마트·관공서·의료기관 접근이 쉽고, 광양커뮤니티센터 같은 공공 문화·체육시설도 도보권입니다. 초·중·고가 촘촘히 분포하고 공공도서관·학원가 이용도 편리해 학부모 만족도가 높을 입지입니다. 도로망은 중마로·중앙로와 이순신대교, 동광양IC를 통해 광역 이동이 수월하고, 국지도 58호선·지방도 861호선 개통으로 중마동~망덕포구 접근성까지 개선됐습니다. 더샵 광양레이크센텀의 장점은 결국 ‘생활 반경이 짧아지는 집’이라는 데 있습니다.
산업·관광 모멘텀과 배후수요
포스코 광양제철소, 광양항, 국가산단·율촌산단 등 직주 인프라가 가까워 탄탄한 임대·매매 수요가 예상됩니다. 더샵 광양레이크센텀은 이 같은 안정적 배후수요에 더해, 이차전지 소재·수소 생산라인 투자 계획과 관광 인프라 확충(이순신대교 해변관광 테마거리, 삼화섬 연계 콘텐츠 등)에서 오는 간접 수혜도 기대할 수 있습니다. 지역이 ‘산업과 관광을 동시에 키우는’ 방향으로 가고 있다는 점이 중장기 체류 인구를 늘리는 요소입니다.
자금·가격 관점에서의 포인트
분양가 급등 구간에서 합리적 책정을 내세운 점이 체감 장점입니다. 전용 84㎡ 비중이 77% 이상인 구조는 대출·보유세·관리비 측면에서도 효율적이고, 되팔 때 수요가 가장 두터워 환금성까지 뒷받침합니다. 실거주 관점에서는 초기 비용 대비 커뮤니티·조경·스마트 설비가 주는 ‘생활 프리미엄’이 크고, 투자 관점에서는 산업·관광 모멘텀, 도로망 개선, 호수·산 조망 희소성이 방어력을 높여 줍니다. 더샵 광양레이크센텀의 선택 가치는 바로 이 균형감에서 나옵니다.
미래가치와 보유 전략
도심권 관광지화, 산단 고도화, 생활SOC 확대가 병행되면 주거 수요는 더 견고해집니다. 더샵 광양레이크센텀은 대단지 규모, 학세권·몰세권·파크세권이 겹치는 입지, 수요가 두터운 84㎡ 중심의 상품 구성으로 상승 구간의 레버리지와 하락 구간의 방어력을 함께 챙길 수 있는 포지션입니다. 1차 실거주 후 중장기 보유, 혹은 전·월세 운영 후 갈아타기 전략 모두 유효합니다.
한 줄 정리
생활의 편안함, 자산의 안전성, 자연과 여가의 여유까지—더샵 광양레이크센텀은 일상에 강한 대안입니다. 실거주자에게는 ‘지금 사는 오늘’을, 투자자에게는 ‘내일의 방어력’을 선물할 단지로 판단합니다.
